Wedding Information for Clients
We’re Looking Forward to Your Big Day!
Welcome to the Promise Farm client resource page, your go-to spot for all the details you’ll need as you plan your wedding day. Here, you’ll find helpful tools like our event information form, sample floor plans, and a link to our recommended vendor list to make your planning process smooth and stress-free.
Wedding Information Form
Please submit this form at least 30 days prior to your wedding.
Your rental includes 5 1/2 hours of event time from start to finish, and your event must end by 9:30 pm. You may arrive as early as 8 am and you must vacate the venue by 11 pm.
"*" indicates required fields
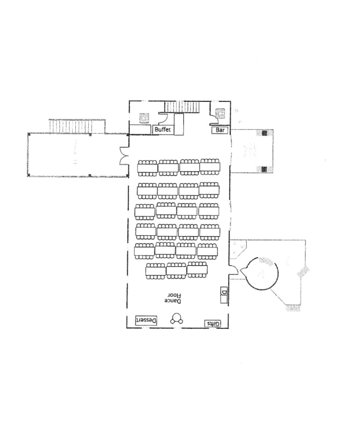
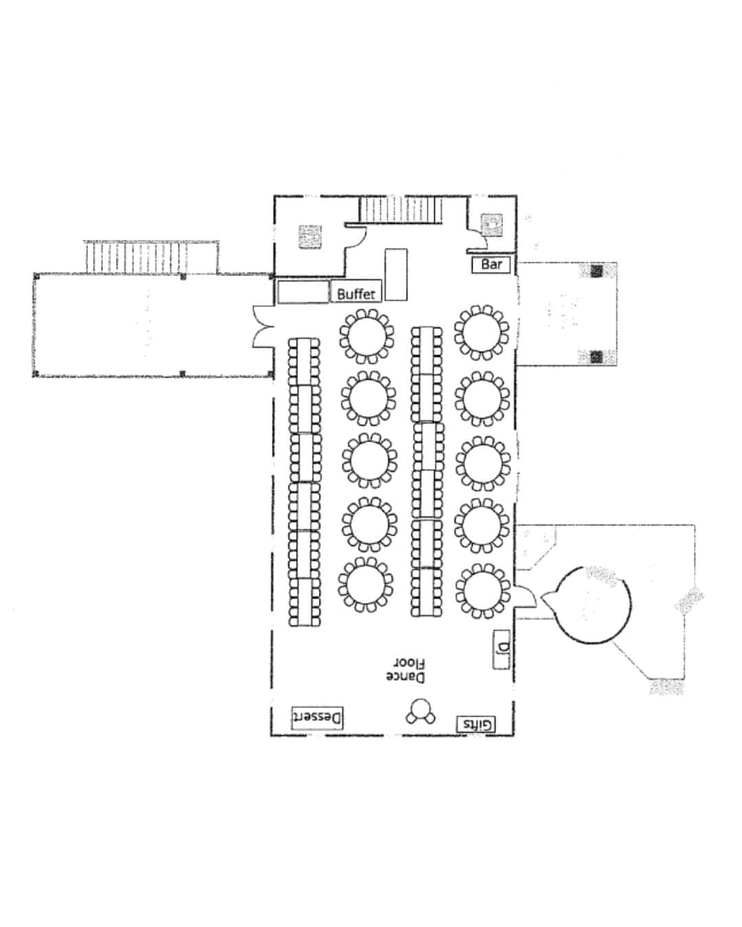
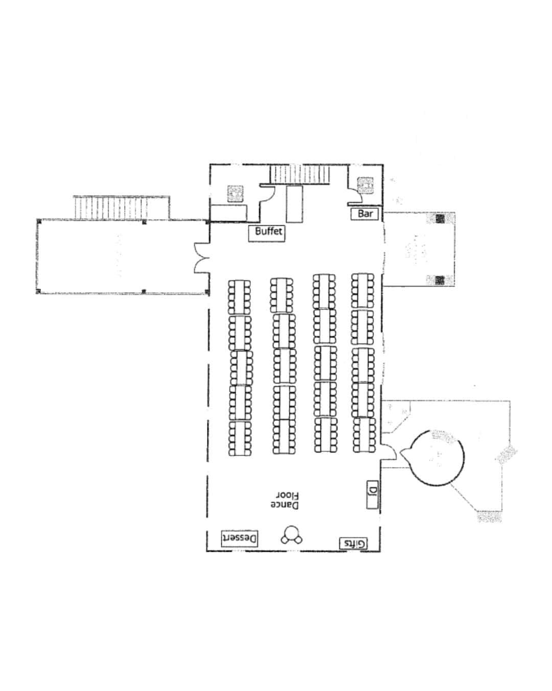
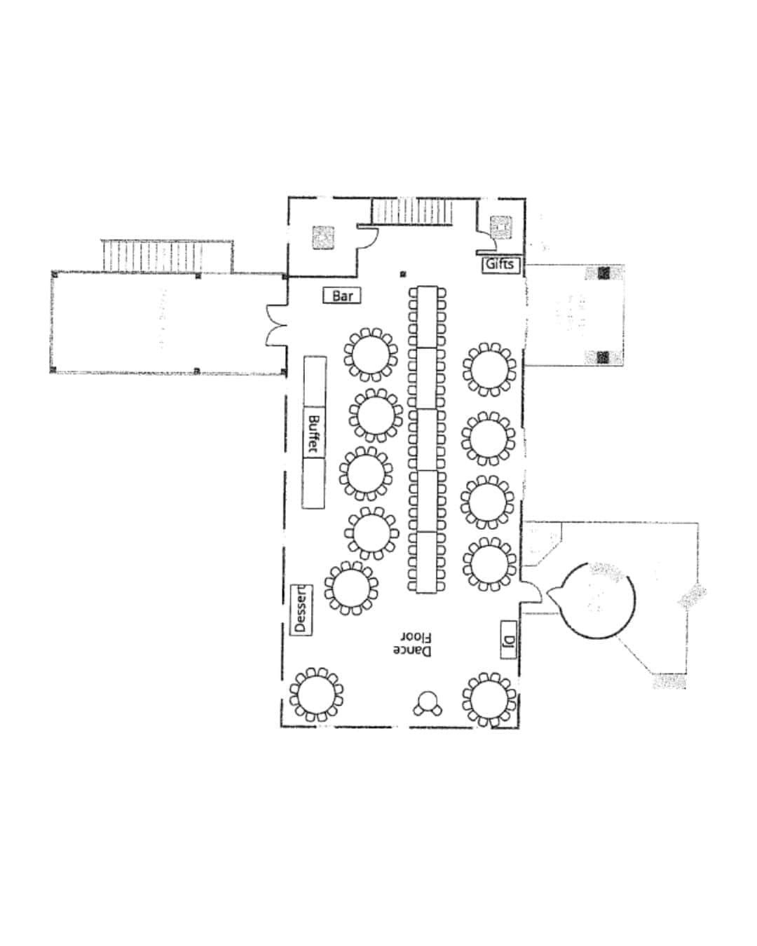
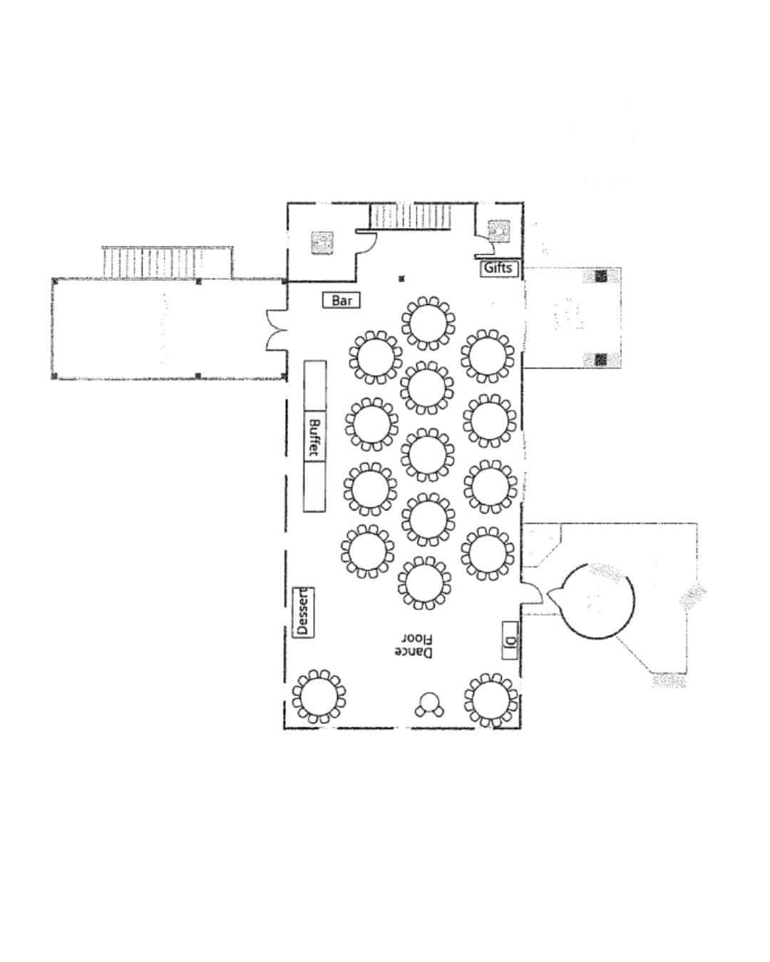
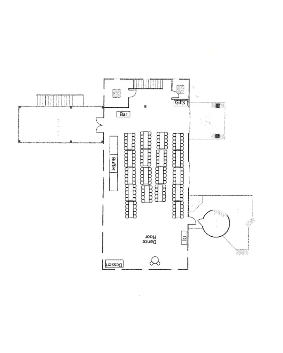
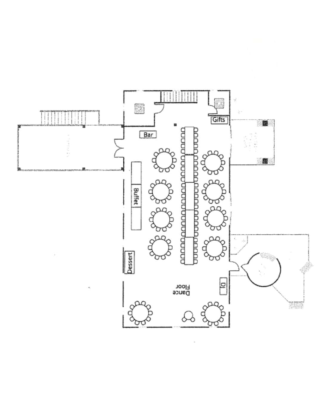
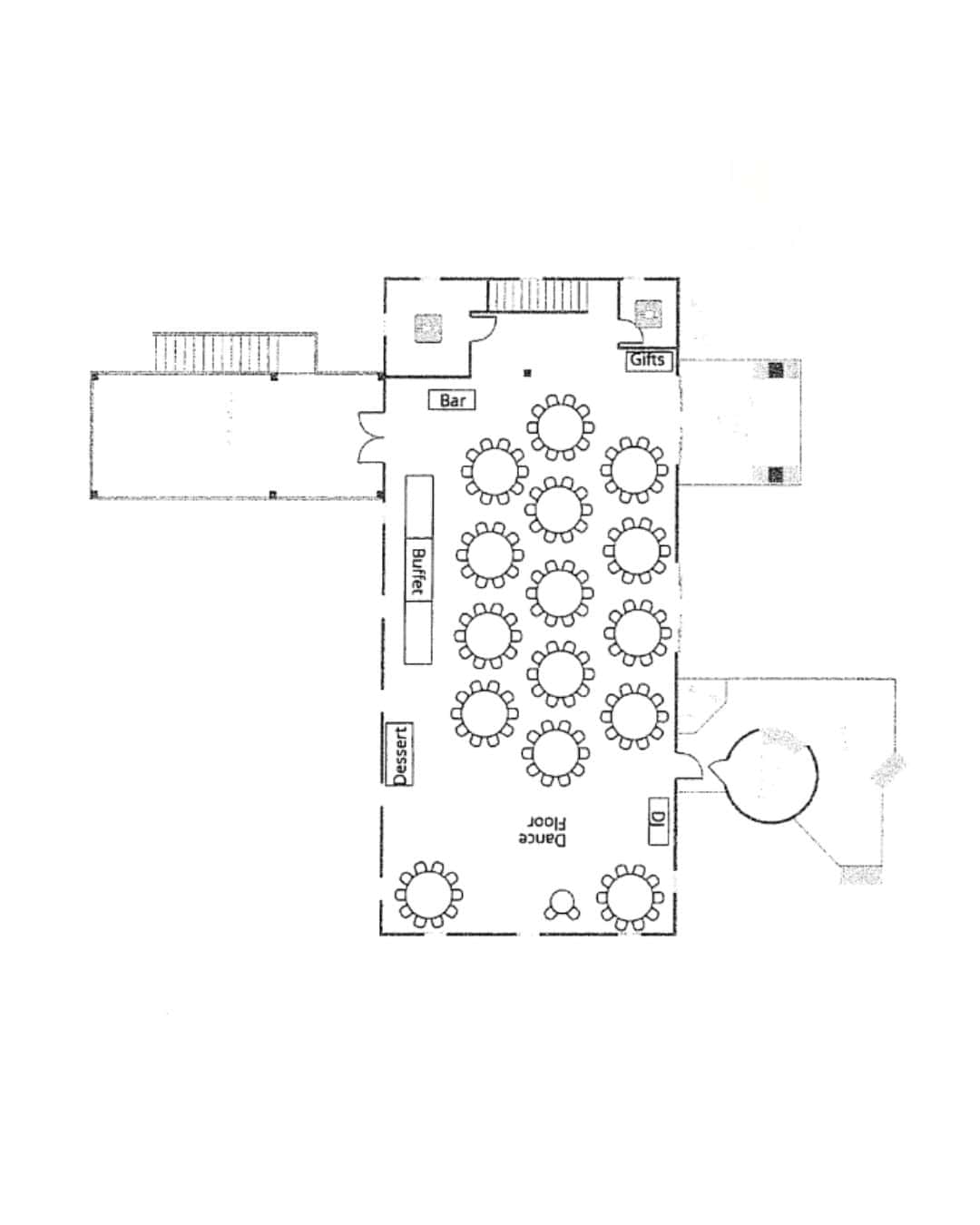
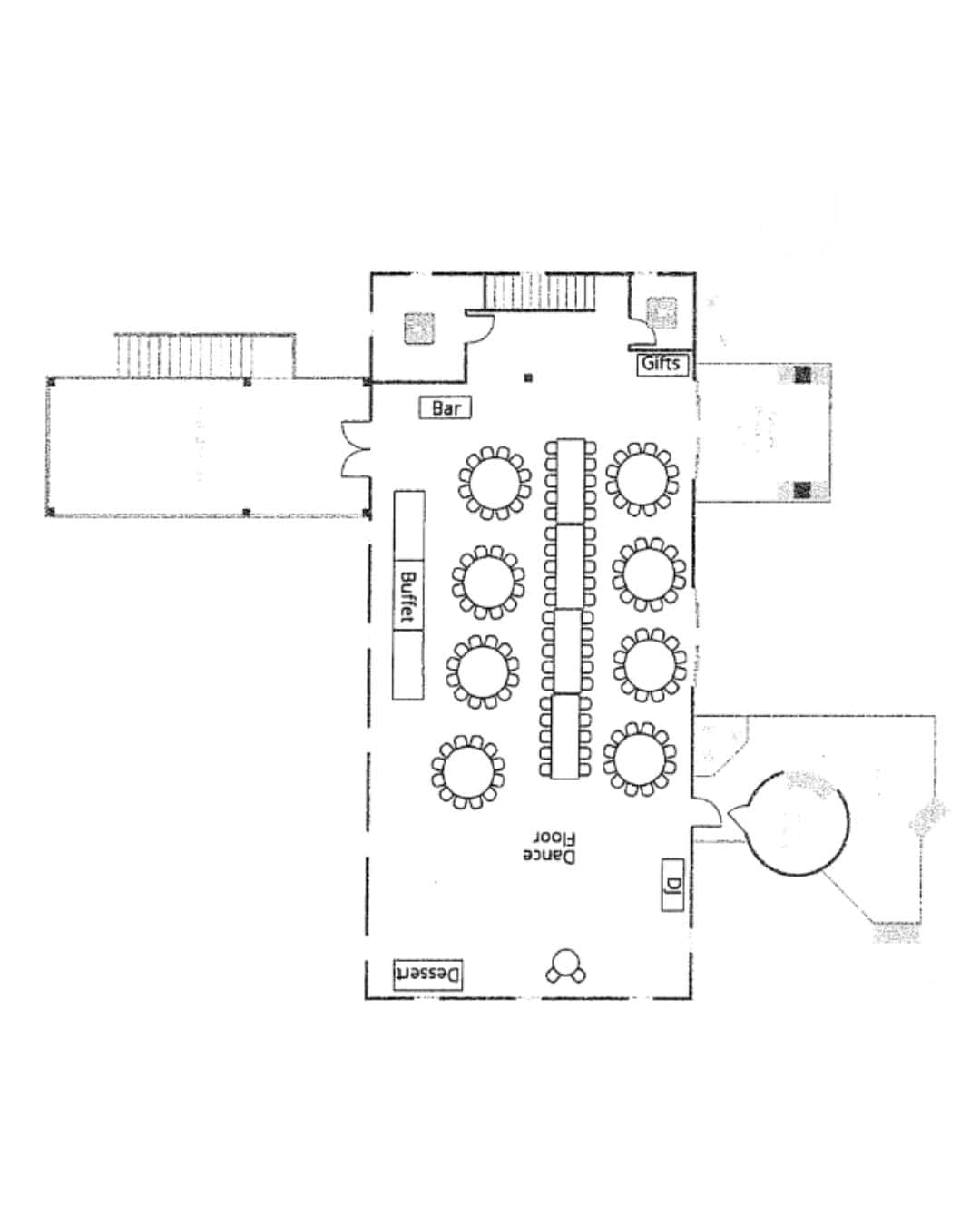
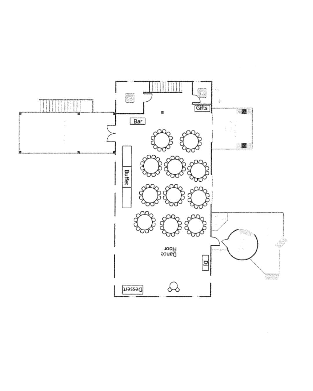
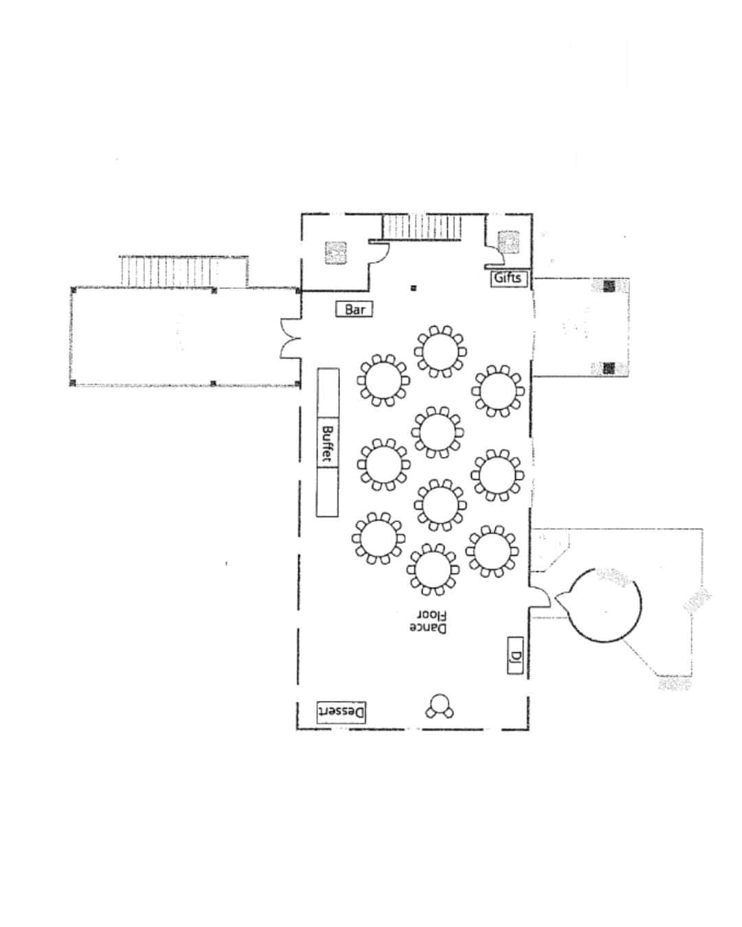
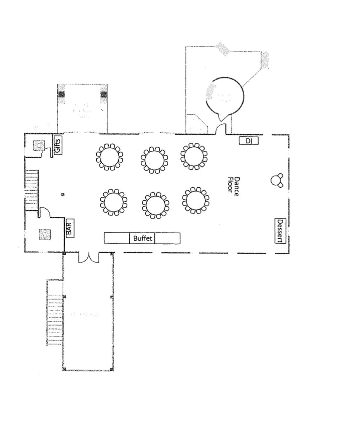
Layout Flexibility at Promise Farm
Every event at Promise Farm is unique, and our versatile spaces make it easy to design a layout that fits your vision. Whether you’re planning an intimate gathering or a large celebration, the barn can be arranged in countless ways to suit your style, guest count, and flow of the day. The sample floor plans below offer inspiration and a glimpse of what’s possible.
Wedding Day Insurance Coverage
Conveniently purchase wedding day insurance with our trusted partners at Wedsure. Click the button to receive an instant quote and get details of wedding day insurance.
















